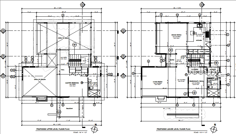
Construction Documents
Once a concept is developed & approved by the client, construction documents are created. Construction drawings, are detailed technical drawings, used by builders, contractors, and engineers to accurately construct an array of residential structures. These documents provide precise specifications, materials, and measurements to ensure the structure is built as designed. SAAM Design Studio has extensive experience designing a wide range of projects: Custom Homes, Single-Family Homes, Duplexes, Townhomes, Spec Homes, Tract Homes and Accessory Dwelling Units (ADUs).

